Котлы мощностью 200 кВт на угле выполняются на различных видах топлива, в зависимости от этого имеют различное конструктивное исполнение и топочную камеру.
Котельный завод "РЭП" производит три вида котлов на угле:
Котлы угольные выполняются в соответствии с ГОСТ 30735-2001 "Котлы отопительные водогрейные теплопроизводительностью от 0,1 до 4,0 МВт".
Котлы на угле работают с принудительной циркуляцией в закрытых и открытых системах теплоснабжения:
Котлы 200 кВт угольные имеют следующие технические характеристики:
Цена на котел на угле указана на нашем сайте. Отопительные котлоагрегаты мощностью до 1 МВт на угле на Котельном заводе всегда есть в наличии. Производство отопительных котлов под заказ завод осуществляет в течении 10-20 дней.
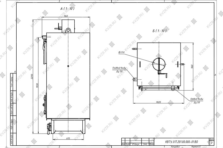
Отопительный котел на угле 200 кВт выполнен двухблочным - блок котла и колосниковая топка. Блок водогрейного промышленного котла представляет собой стальную сварную конструкцию, состоящую из стальной трубной системы (радиационной и конвективной поверхности нагрева), опорной рамы и каркаса с теплоизоляционными материалами, обшитого листовой сталью. На фронте котла устанавливается топочная дверка для загрузки топлива и выгрузки шлака. В модели твердотопливного котла с возможностью сжигания резервного топлива дров на фронте котла устанавливается 2 загрузочные дверки.
Блок водогрейного котла представляет собой сварную конструкцию, состоящую из трубной системы (радиационной и конвективной поверхности нагрева), опорной рамы и каркаса с теплоизоляционными материалами, обшитого листовой сталью. Стальные отопительные котлы имеют башенную сомкнутую компоновку. Топочная камера котлов состоит из труб Ø 32x3,0 мм. Топочная камера водогрейного котла выполнена газоплотной путем плавникового оребрения. Конвективная часть нагрева состоит из пакетов змеевиковой формы выполненных из труб Ø 32x3,0 мм, для интенсификации теплообмена трубы пакетов расположены в шахматном порядке. Это обеспечивает более интенсивное и полное омывание труб горячими газами. Газы в конвективной части проходят два хода и выходят через газоход в верхней части задней стенки котла.
Гидравлическая схема промышленного твердотопливного котла 200 кВт выполнена многоходовой, с множеством перегородок, для увеличения скорости воды в котле отопительном водогрейном и исключения застойных зон и локального перегрева поверхностей нагрева. Кроме того, турбулизация водяного потока препятствует образованию пристенного кипения и отложения накипи на поверхностях нагрева. Котлы работают с принудительной циркуляцией теплоносителя которую обеспечивают сетевые насосы.
Топочная камера промышленного котла 200 кВт на угле выполнена газоплотной. Газоплотность котла обеспечивается путем варки стальной полосы в межтрубное пространство топочных панелей. Ширина газоплотной полосы рассчитывается таким образом, чтобы обеспечивать ее стабильное равномерное охлаждение и не допустить перегрев и порыв в процессе эксплуатации котла. Качество обварки газоплостности обеспечивает исключение присосов холодного воздуха в топочную камеру котла и исключает выбивание дымовых газов в котельный зал котельной.
Легкая изоляция стального котла выполнена съемной, облегченной из плит ПТЭ, плиты закрепляются на каркасе, обшивка выполняется из стальных листов. Преимущества легкой изоляции - максимальная монтажная готовность котельного блока, его компактность, минимизация потерь КПД котла через потери тепла q5 в окружающую среду, за счет высокого качества обмуровки.
По желанию заказчика возможно исполнение котельного блока под кирпичную обмуровку, без обшивки и изоляции. Но на сегодня такие модели котлов практически не пользуются спросом у заказчиков ввиду больших по сравнению с легкой обмуровкой стоимости и срока монтажных работ.
Газы в конвективной части котла 200 кВт на угле проходят два хода и выходят через газоход в верхней части задней стенки котла. В случае установки котла в уже существующей котельной с газоходами расположенными снизу котельной, возможно изготовление опускного газохода вдоль задней стенки котла и вывод газов вниз. Для очистки конвективных поверхностей нагрева от сажи и золы в обшивке котла предусмотрены удобные люки. В нижней части стального отопительного котла находятся два зольных бункера, под топкой и под конвективной поверхностью нагрева. В бункерах предусмотрен лаз для очистки от зольных отложений и осмотра труб конвективного пакета.
Котел производственный на угле работает с уравновешенной тягой, которую обеспечивает дымосос ДН. Вентилятор поддува в котле не нужен.
Для того чтобы купить котел 200 кВт на угле, вы можете сделать заявку в отдел сбыта по телефону (38-52) 29-97-41 (42), либо оформить заявку онлайн. Наши менеджеры дадут консультацию по подбору вспомогательного оборудования для выбранных вами моделей и рассчитают стоимость доставки до вашего региона и населенного пункта. Также предлагаем вам выполнить проект реконструкции котельной. Завод осуществляет производство котлов на угле по типовым проектам с различными видами топочных устройств - топка ОУР либо колосниковая решетка и по техническому заданию, согласованному с заказчиком производим доработки котла под вашу котельную: зеркальное отображение подвода теплоносителя, изготавливаем опускные газоходы, делаем дополнительные топочные дверки и подобное.
Котел на угле 200 кВт для отопления поставляется готовым блоком в обшивке с чугунной топочной дверкой, с зольником и комплектом колосников, либо топкой РВР. С котлом поставляется паспорт и инструкция по эксплуатации водогрейного котла.
По запросу поставляется комплект обязательной арматуры, КИП и ДВ: затворы дисковые - 2 шт., запорные вентили - комплект, предохранительные клапаны - 2 шт., термометры с оправой - 2 шт., манометры с кранами - 2 шт., дутьевой вентилятор - 1 шт. Котел 200 кВт работает без вентилятора.
Кроме того теплоагрегаты могут быть выполнены в двух вариантах изоляции: блок котла в обшивке и изоляции; блок котла (без обшивки и изоляции, под тяжелую обмуровку).
Автоматика котла на угле подбирается по техзаданию.
Теплогенератор работает с ДН 3,5 с дв. 3,0/1500 при сжигании каменного и бурого угля, но без дутьевого вентилятора. При установке дымососа на группу котлов, дымосос подбирается индивидуально согласно опросному листу.
Для обеспечения циркуляции воды через котел 200 кВт на угле либо группу котлов применяется циркуляционный насос, для подпитки котла применяется подпиточный насос.
Дымовая труба подбирается по техзаданию, на котел или группу котлов.
Цена водогрейного котла 200 кВт угольного в Красноярске включает в себя котельный блок в изоляции, колосники, вентили, затворы, манометры, термометры и предохранительные клапаны. Ниже приведена подробная информация.
Для эффективной и надежной работы котла 200 кВт угольного в вашей котельной вам потребуется дополнительное оборудование - автоматика ЩУК, насос сетевой и подпиточный, газоходы и переходники для газового тракта, дымовая труба. Мы предлагаем рассмотреть типовые варианты комплектации.
В случае если у вас на объекте уже имеется насосное и тягодутьевое оборудование, мы можем проверить совместимость котла 200 кВт угольного нашего производства и вашего оборудования.
Можем изготовить нестандартные узлы для выполнения быстрого монтажа котла - газоходы и узлы обвязки.
Типовую схему монтажа котла вы можете посмотреть во вкладке схемы подключения и монтаж.
Водогрейный твердотопливный стальной отопительный котел 200 кВт угольный, предназначен для получения горячей воды номинальной температурой на выходе из котла от 95 до 115 °С рабочим давлением до 0,6 (6,0) МПа (кгс/см), используемой в системах централизованного теплоснабжения на нужды отопления, горячего водоснабжения. Устанавливается в производственных, промышленных и отопительных котельных.
Монтаж водогрейного котла 200 кВт угольного и вспомогательного оборудования в котельной должно производиться в соответствии с проектом и учетом требований СП 89.13330. 2016 «Котельные установки. Актуализированная редакция СНиП II-35-76» и «Правил устройства и безопасной эксплуатации паровых котлов с давлением пара не более 0,07 МПа (0,7 кгс/см2), водогрейных котлов и водоподогревателей с температурой нагрева воды не выше 388 К (115 С). Правильный монтаж котла – залог его надежной и долгой работы.
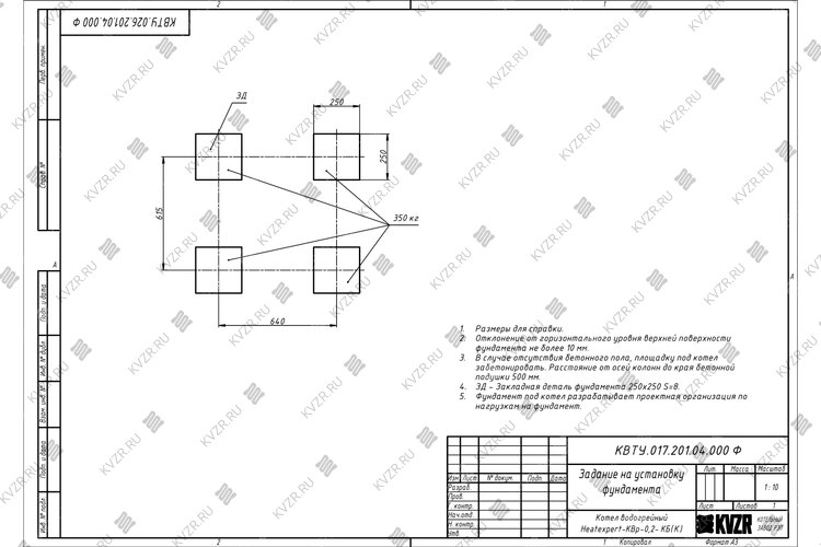
Чтобы правильно подключить котел 200 кВт угольный в котельной необходимо оставить проемы для обслуживания оборудования во время эксплуатации. На представленной здесь схеме указаны их минимальные размеры. Кроме того, в данной примерной схеме монтажа водогрейных котлов и оборудования указан перечень минимально необходимого вспомогательного оборудования для правильной работы котла.
К вспомогательному оборудованию при подключении промышленного водогрейного котла КВр относят - щит управления котлом, насос циркуляционный, насос подпиточной воды, бак запаса воды, расширительный мембранный бак, дымовую трубу, систему газоходов и дымосос, золоуловитель (по желанию).
В случае если подпиточная вода не соответствует по своим характеристикам требованиям к питательной воде, необходимо предусмотреть систему водоподготовки котловой воды.
Для котельных 1 категории, являющиеся единственным источником тепла системы теплоснабжения и обеспечивающие потребителей первой категории, не имеющих индивидуальных резервных источников тепла, необходимо предусмотреть полное резервирование оборудования – подключение 2 (двух) котлов, насосов, ТДМ. Пунктиром обозначено оборудование для резервирования.
Для котельных 2 категории, включающие в себя промышленные и производственные котельные резервирование нужно предусматривать по необходимости.
Образец тепловой схемы подключения оборудования в котельной приведен на данной схеме. При эксплуатации очень важно грамотно осуществить подключение оборудования, установить все контрольно измерительные приборы, для контроля параметров работы котельной и запорную арматуру для оперативного переключения потока теплоносителя при плановой или аварийной остановке оборудования. Данную схему можно использовать как пример для разработки под свой объект или заказать у нас разработку индивидуальной схемы для вашей котельной.
Водогрейные котлы производства Котельный завод "РЭП" соответствуют строгим стандартам качества и безопасности. Завод производит котлы в соответствии с требованиями ГОСТ 30735-3001 по Техническим Условиям завода.
Котлы имеют все необходимые сертификаты соответствия Техническим регламентам Таможенного союза:
Водогрейный котел 200 кВт угольный имеет гарантийный срок 24 месяца и срок работы при соблюдении правил монтажа и эксплуатации оборудования 10 лет.

Отзыв о работе котла КВр производства Котельный завод "РЭП", проработавшего на АО "Водоканал" г. Белокуриха 10 лет. Интервью предоставил заместитель главного директора по производству Суходоев Сергей Николаевич.

Интервью с главным энергетиком базового комплекса "Сводор" г. Барнаул о работе водогрейного котла нашего производства, отапливающего предприятие с 2008 года.
Котел 200 кВт на угле используется для отопления производственных, административных и жилых зданий. Котельный завод производит и поставляет весь перечень сопутствующего котельного оборудования- насосы, газоходы, автоматику, дымососы, дымовые трубы, циклоны и прочее. Специалисты нашего завода бесплатно подберут сопутствующее оборудование, а в случае необходимости, выполнят проектирование, монтаж и пуско-наладку котельной установки.
Подобрать мощность котла по площади важно учитывая не только площадь и объем здания, но и тип зданий и климатические данные региона.
На нашем сайте калькулятор расчета мощности котла учитывает тепло, требуемое на возмещение тепловых потерь через строительные конструкции и потери, вызываемые инфильтрацией (проникновением) наружного воздуха, через их неплотности и периодически открываемые двери.
Наружный строительный объем здания должен определяться умножением площади горизонтального сечения, взятого по внешнему обводу здания на уровне первого этажа на полную высоту здания, измеренную для панельных зданий: от уровня чистого пола (нулевой отметки) до верхней плоскости теплоизоляционного слоя чердачного покрытия, для остальных строений от уровня земли.
Расчетная температура воздуха в отапливаемых зданий принимается в зависимости от типа и назначения здания:
В случае если требуется отопление различных по типу зданий, теплопотребление каждого считается отдельно, полученные значения складываются и подобрать мощность котла нужно в соответствии с общей суммарной мощностью каждого отдельно стоящего задания.
Климатические условия вашего региона принимаются в соответствии с СП 131.13330 Строительная климатология. Данные по всем регионам России занесены в наш калькулятор расчета мощности котла.
Подобрать мощность котла по площади с учетом потребностей объекта в тепле на вентиляцию и горячую воду возможно только с более детальным расчетом. Его вы можете заказать в отделе сбыта котельного завода отправив заявку на электронный адрес sb@kvzr.ru или позвонив по телефонам (38-52) 29-97-41, 29-97-42.